12182 N LENNON LN

Rathdrum, ID 83858

$649,000

Bedrooms: 3

Full Baths: 2

Half Baths:

Year Built: 2026

Square Feet: 1702

Lot Size: 0.34 Acres

12182 N LENNON LN
Rathdrum, ID, 83858
$649,000

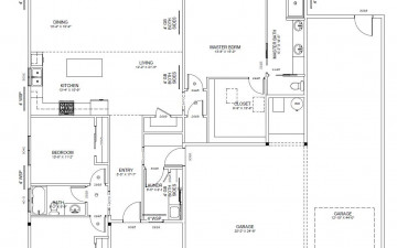
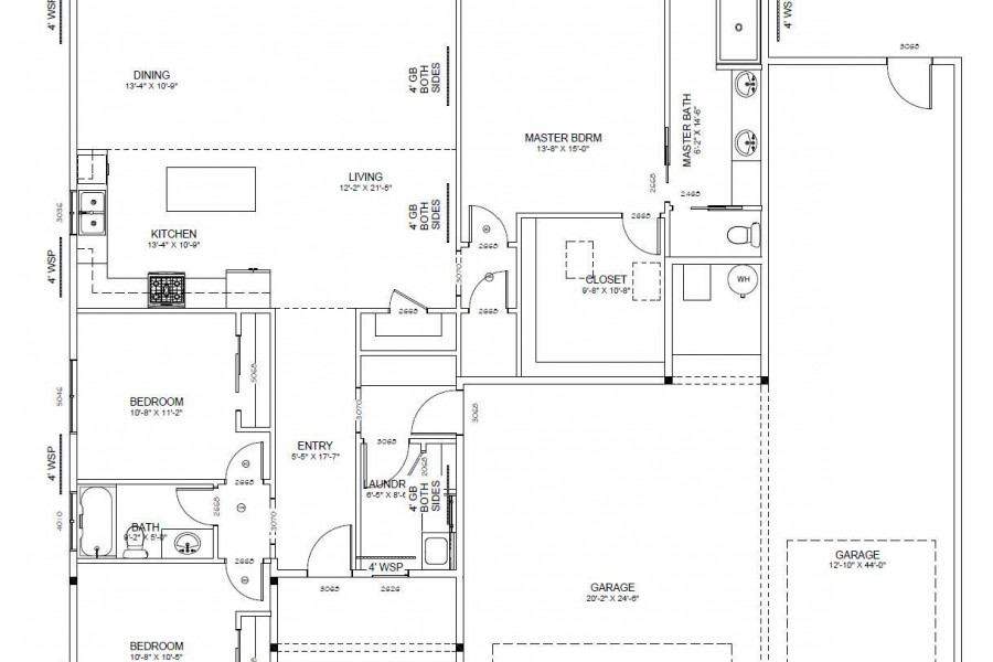
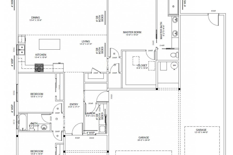
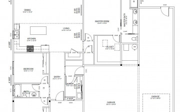
To be Built home with a 44' deep RV bay in Hollice Woods! The Harrison floor plan is a spectacular one story, 1,702 square foot home featuring a primary suite, two guest bedrooms, a guest bathroom, laundry/utility room off the garage. The large kitchen with an island flows into the vaulted ceiling dining and great room areas making entertaining a breeze. The primary suite boasts a walk-in closet, walk-in shower, dual sink vanity and large bedroom. Take in the neighborhood from your covered front porch or enjoy your privacy from your covered back patio. Standard features include painted siding, quartz in the kitchen and baths, full a/c, water-resistant laminate flooring, gutters and more! Large, insulated RV Bay is almost 13' wide by 44' deep, with a 12' RV Garage door. Photos are of previously built homes. $10k buyer incentive offered!

  • Bedrooms: 3
  • Baths Total: 2
  • Square Feet: 1702
  • Year Built: 2026
  • Lot Size: 0.34 Acres
Mortgage Calculator

Mortgage Calculator

12182 N LENNON LN
Rathdrum, ID, 83858

Contact Me

Have real estate questions? Want to know how much your home is worth? Contact me, I'd love to help!